Metro Atlanta
Alpharetta approves plan for special needs school

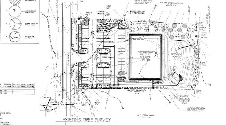
Alpharetta recently approved a plan to allow Bright Path Academy to operate at 12395 Morris Road. (Courtesy City of Alpharetta)
By Karen Huppertz for the AJC
June 6, 2022The Alpharetta City Council recently approved a plan for Bright Path Academy to operate at 12395 Morris Road.
Approval came with a number of conditions including any outdoor recreational area in the future it must be limited to the north side of the building and the 50-foot buffer adjacent to the residential property must be maintained.
Bright Path Academy of Georgia is a not-for-profit school for children with special needs. The academy will provide educational services for students in grades 6-12. Students are mostly non-verbal children with an autism diagnosis and sensory processing disorders.
Initial enrollment will be about 10 students beginning in August.


